Queens Residences
ウォーターフロントと家の調和
クイーンズベイモールの前に広がる
巨大な開発エリアに完成した,静かな海を
望む高級コンドミニアム。
日常生活に調和とバランス,快適さを
提供すべく,オリジナリティ溢れる
デザインが取り入れられています。
-
- 新たなランドマークへ
- コンドの完成を皮切りに, Queens Waterfrontには スポーツアリーナやサッカー場, そしてインターナショナルスクール も計画されています。
-
- 充実の共有施設
- 目を見張る豊富な施設が特徴。
定番のジム・プールに加え, ファミリールームやゲームルーム, 子供向け室内プレイグラウンドなど。 -
- 抜群の利便性
- ペナン有数の商業施設, クイーンズベイモールまで 徒歩圏内。
さらに隣接する Q1コンド1階ではスーパーや レストランが利用可能。
基本情報
| 物件名称 | Queens Residences Q2 |
|---|---|
| 築年数 | 1年(2022年竣工) |
| 総戸数 | 450戸 地上23階建 |
| 間取り | 3~4ベッドルーム 1,400~1,650SQFT |
| 共用施設 | インフィニティプール,ファミリースパ,ジムなど |
| 所有権 | Freehold(所有権) |
| 開発会社 | Ideal Gim Venture Sdn Bhd |
| 販売価格帯 | RM1,892,990 ~ |
新たなランドマークへ
クイーンズウォーターフロント完成予想図
クイーンズウォーターフロントとして開発が進められている,クイーンズベイモールの前に広がる36.5エーカーの広大な埋め立て地エリアに,Q1からQ4までのコンドミニアムを有する居住区エリア(現在Q2まで完成)と,多目的スポーツアリーナ,競技用プールにサッカー場,そして新しいインターナショナルスクールまでが計画されています。これほどのスポーツ競技施設が集約された一大拠点はペナンでは初の試みで,完成を見れば,ペナン一のランドマークとなる可能性を秘めているでしょう。
充実の共有施設
5階はフロア全体が共有施設エリアとして開放されており,静かな海を臨むインフィニティプールや子供用プールを初めとする充実した施設群をいつでもご利用いただけます。
お子様はウォータースライダーのあるプールやプレイグラウンドで,ご両親はジムやご友人とヨガレッスンで汗を流す週末はいかがでしょうか。。
5階の共有施設エリア
-
・ インフィニティプール
・ 子供用プール
・ ジム
・ 子供向け屋外/屋内プレイグランド
・ 水中ジム(プール底にジム器具設置)
・ BBQエリア
・ 屋外/屋内ジャグジー
・ 読書ルーム
-
・ ラウンジ
・ ダンス・ヨガルーム
・ 多目的ホール
・ マルチメディアルーム
・ シアタールーム
・ ゲームルーム
・ ミーティングルーム
・ ファミリールーム
-
インフィニティプール
子供用プール
-
ジム
ゲームルーム
抜群の利便性
クイーンズウォーターフロントは,マレーシア本土に面するペナン島の西海岸,空港寄りのバヤンレパスという地区で開発が進められています。
ペナン空港まで25分,ジョージタウンまで25分と,南北の主要ランドマークのほぼ中間に位置しており,いずれの方面にお出かけの際も便利な距離感となっております。
クイーンズベイモール
ペナンの2大ショッピングモールの一角,クイーンズベイモールが徒歩圏内です。
イオン系列のスーパーと百貨店が入居するほか,一風堂や星野珈琲,シャトレーゼ,ダイソーなど数多くのレストランとショップがお楽しみいただけます。
ビレッジグローサー
お隣のコンドQ1の1階には,大型スーパーのビレッジグローサーが入居しており,クイーンズベイモールのすぐ前にも関わらず売れ行きは順調のようです。
食料品や日用品はほぼ揃いますので,普段のお買い物はこちらで十分でしょう。
Q1/Q2の商業施設
Q2の1階には日本料理やタイ料理のレストランが営業しており,今後も様々な商業施設が入居する見込みです。
また,前述の大型スーパーが入居するQ1では,スーパーの他に日本の居酒屋風レストランや子供向けの有料プレイグランド,カフェやミルクティー店も軒を連ねます。
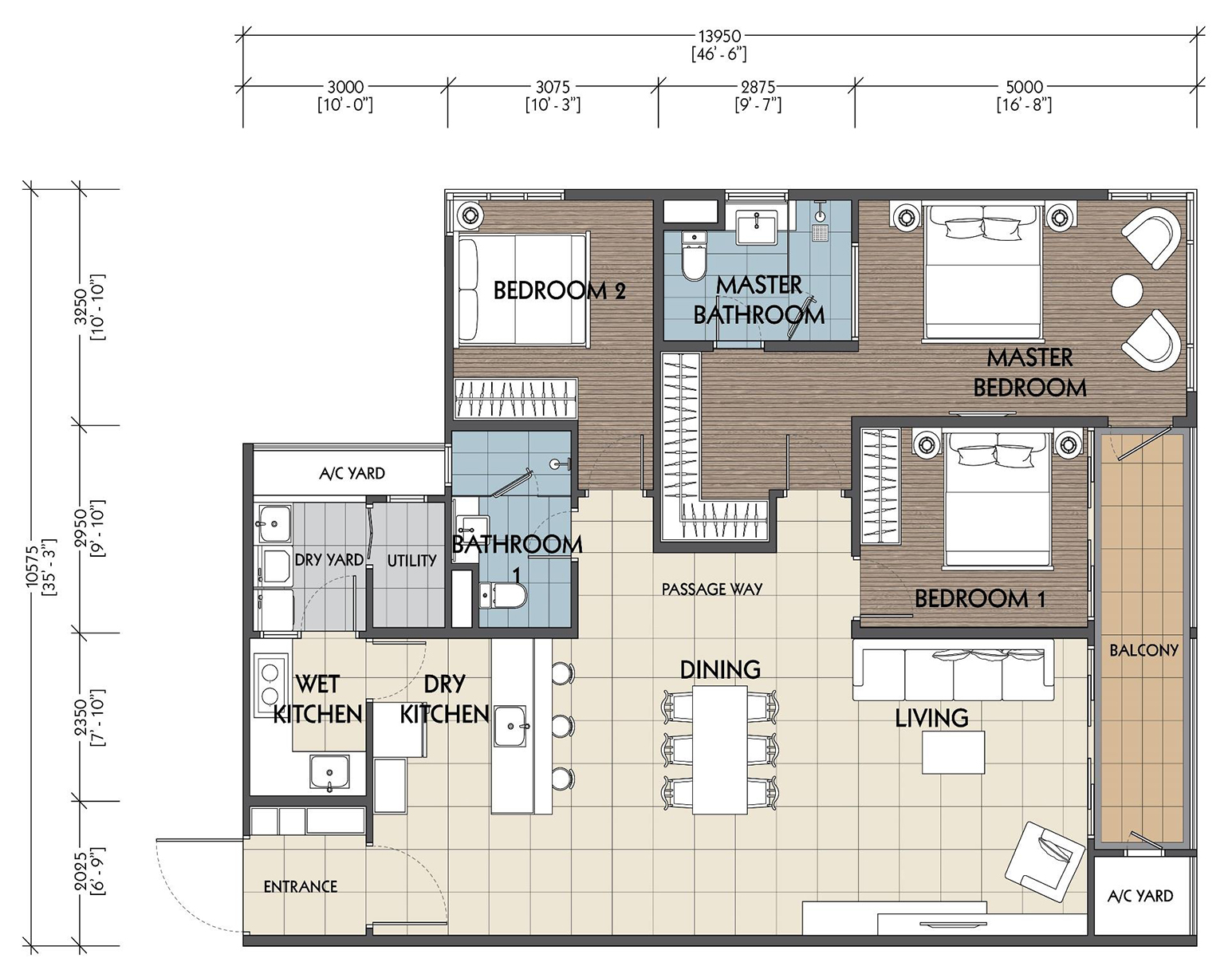
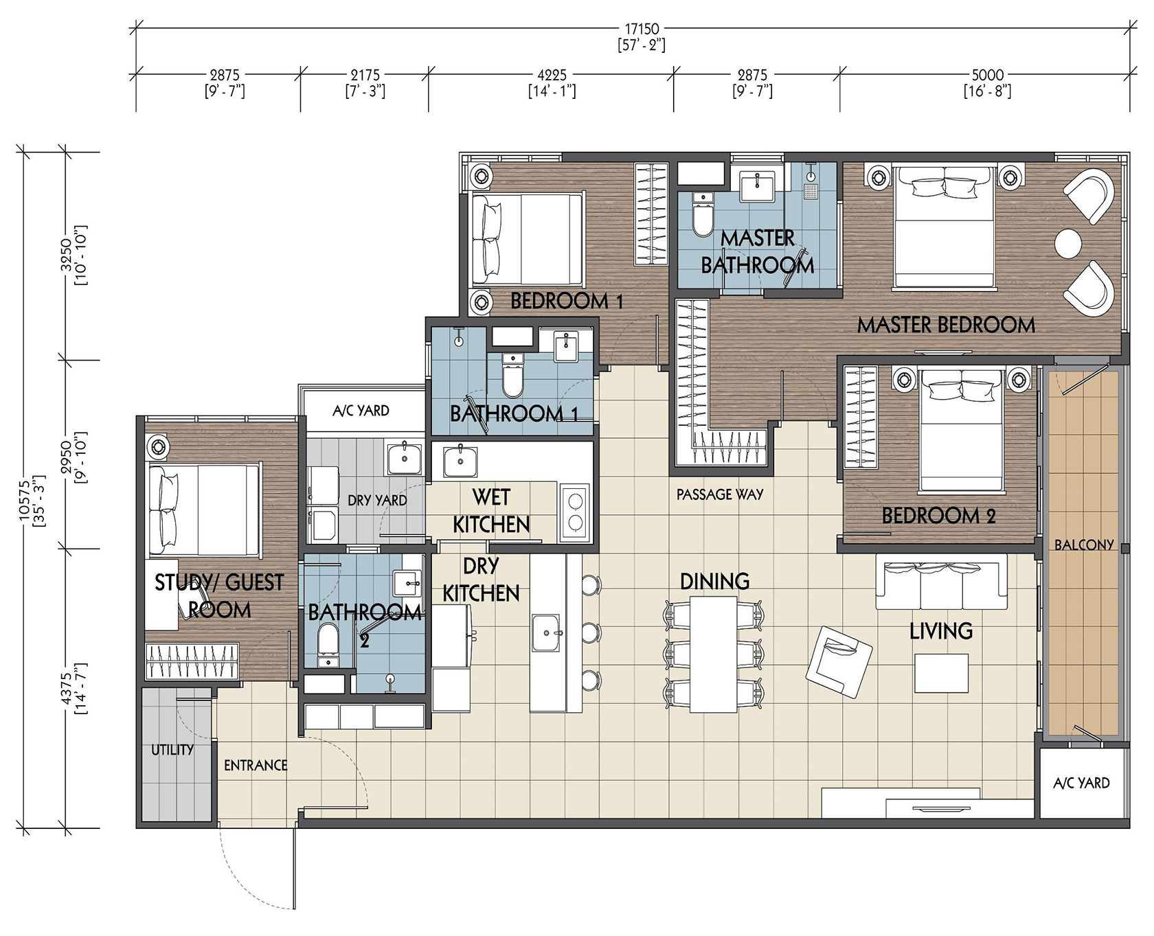
間取りの一例
-
3ベッドルーム: Q2 タイプD
-
-
4ベッドルーム: Q2 タイプE1
-
販売中のお部屋
| 間取 タイプ |
部屋 番号 |
階建 /階 |
専有面積 | 価格 (リンギット) |
|---|---|---|---|---|
| Q2 Garden House |
06-01 | 23/6階 | 1,883sqft (約175m2) |
RM 228.4万 |
| Q2 Type D | 21-02 | 23/21階 | 1,400sqft (約130m2) |
RM 189.3万 |
| Q2 Type E1 | 15-03A | 23/15階 | 1,650sqft (約153m2) |
RM 205.0万 |
| Q2 Type E1 | 23-03A | 23/23階 | 1,650sqft (約153m2) |
RM 210.2万 |
諸費用の特典
| 諸費用 | 無料 |
|---|---|
| 弁護士費用 (MOT) | |
| 弁護士費用 (ローン) | |
| 州政府合意申請 | 50% |
| 外国人課税 | ✔ | 印紙税 |
| 仲介料 | ✔ |
| 鑑定費用 (ローン) |
現在Q2のみ販売中です。
クイーンズレジデンスは,他の新築物件と比べて諸費用の特典が限られておりますのでご注意下さい。
総額詳細は別途御見積りさせていただきますので,ご遠慮なく弊社までお問い合わせ下さい。